嘉兴雷鸟软件科技有限公司

主营:计算机网络工程施工

更多产品

企业信息

Information

嘉兴雷鸟软件科技有限公司

法人代表:孙伟

注册地址:浙江省嘉兴市南湖区勤俭路337-347号318室

所属行业:软件和信息技术服务业

更多行业:基础软件开发,软件开发,软件和信息技术服务业,信息传输、软件和信息技术服务业

联系我们

电话:1339623**

邮箱:10324815**[email protected]

地址:浙江省嘉兴市南湖区勤俭路337-347号318室

产品列表

PRODUCT
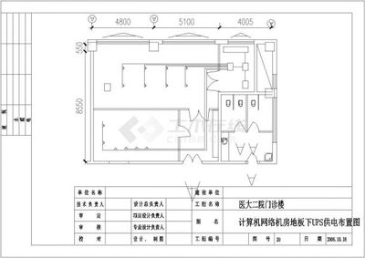
甘肃兰州通信工程设计公司施工图设计蓝图签章与计算机网络工程施工规范

公司简介

COMPANY

公司简介: 嘉兴雷鸟软件科技有限公司成立于2016年03月18日,注册地位于浙江省嘉兴市南湖区勤俭路337-347号318室,法定代表人为孙伟。经营范围包括软件开发;计算机网络工程施工;计算机、软件及辅助设备、电子产品、办公用品的销售;计算机、软件及辅助设备的安装;图文设计;企业形象设计;市场营销策划;企业管理咨询。

公司简介

经营范围

scope

软件开发;计算机网络工程施工;计算机、软件及辅助设备、电子产品、办公用品的销售;计算机、软件及辅助设备的安装;图文设计;企业形象设计;市场营销策划;企业管理咨询。

友情链接: 化妆品 网络文化经营 食品 安全技术防范系统设计施工服务 服装服饰零售 软件开发 婚庆礼炮 互联网技术服务 玩具销售 土工膜 网络科技 技术开发 家具销售 输油 国内旅游经营服务 针纺织品 技术交流 计算机维修 日用百货 化工产品销售 吊顶材料 地坪材料的研发和购销 国内贸易 网络科技服务 互联网安全服务 日用品 细胞技术研发和应用 庄园 计算机软硬件及网络技术开发 网络技术的研究 电梯数据采集器 信息咨询服务 图文设计 日用百货销售 金属材料及制品 互联网数据服务 互联网信息服务 家具铭牌 酒店管理 建筑材料 暖通设备 日用百货 灯具销售 企业软件开发管理 伸缩门控制器 投资物业管理 水族箱 软件开发 网络与信息安全软件开发 代理 数字内容制作服务 脱硫除尘设备 汽车配件 网页设计 鞋帽零售 软件 气动执行器 信报箱 组织文化艺术交流活动 服饰 实验小学 环保科技 钢板 杭州由在茶业有限公司 广东我爱我家投资有限公司 上海逅锐科技有限公司 上海钰彬黎网络科技有限公司 北京众嘉禾励科技有限公司 北京达巨运科技有限公司 狐狸哆哆(南京)旅游科技有限公司 上海进才旻广告有限公司 四川九鼎宏泰建筑装饰工程有限公司 杭州会友科技有限公司 重庆洋木河科技有限公司 澳兰科技发展(浙江)有限公司 营口豪情生态农业科技有限公司 湖北富邦科技股份有限公司 广州桂丰物业管理有限公司 汕尾浩诚科技有限公司 北京蜡中希科技有限公司 北京中诚祥科技有限公司 苏州悦琦亮贸易有限公司 上海绵存科技有限公司 山东方固机械设备有限公司 青县爱游文化传播有限公司 河南艺境空间文化传播有限公司 杭州融都科技股份有限公司 深圳市韩乐净水科技有限公司 惠山区前洲飞起起重设备经营部 盘锦拓销网络科技有限公司 闽云珈(莆田)网络科技有限公司 北京互星科技有限公司 南通骅际科技发展有限公司 安徽三和电缆有限公司 山东省博兴县烽火云商科技有限公司 北京秒付科技有限公司 成都亿兴诺企业管理有限公司 合肥瑞华安全玻璃技术有限公司 上海雷瑞炫电子商务有限公司 上海慧宇曼科技有限公司 天气预报 盐城乾享网络科技有限公司